Albino (BG)
1120 mq / appartamenti
In costruzione
Nell’area occupata prima dal cinema Ariston e successivamente dalla discoteca Antares, nasce un nuovo progetto di riqualificazione residenziale.

Il progetto consiste nella realizzazione di due edifici residenziali, costruiti a distanza di un anno l’ uno dall’altro, nell’area occupata precedentemente dal cinema Ariston e successivamente dalla discoteca Antares; entrambi luoghi simbolo del divertimento e del tempo libero.

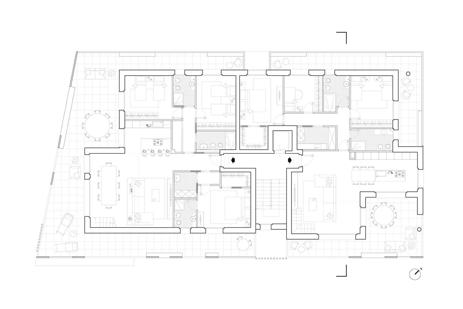
Il concept progettuale si basa sull’idea di apertura degli spazi abitativi verso l’esterno, in modo tale da poter godere del paesaggio circostante sia all’interno che all’esterno dell’edificio stesso: ognuno dei due edifici è costituito da un corpo centrale caratterizzato da ampie vetrate, il quale è circondato, ad ogni livello, da ampi terrazzi abitabili; anche la copertura diventa un ulteriore luogo fruibile da coloro che abitano l’ultimo piano.

Tema fondamentale è stato quello di garantire la stessa privacy esperita all’interno delle pareti perimetrali dell’edificio, anche negli spazi destinati a terrazzo. Ciò è reso possibile dall’utilizzo di pannelli fissi forati, caratterizzati da una trama geometrica, che scandiscono il ritmo del prospetto e si alternano a parapetti trasparenti in vetro o ciechi in lamiera verniciata bianca. In questo modo gli spazi esterni dedicati al riposo, ai pranzi e alle cene in compagnia, sono schermate dall’esterno, ma dall’interno permettono di beneficiare della natura circostante.

Per non dimenticare ciò che questo luogo fu in passato, si è deciso di trasformare alcuni pannelli forati in elementi che attraverso il disegno della loro trama geometrica ricordassero il simbolo della A di “Antares”. Essi risultano essere un segno di riconoscimento sia di giorno sia al calare del sole (essendo retroilluminati) definendo un disegno riconoscibile degli edifici oggetto di intervento.

Incarico: progetto preliminare, definitivo, esecutivo
Collaboratori: Arch. Corin Bombarda, Arch. Marco Moretti
Progetto arredo interni: Moda Mobil
Committente: Immobilter s.r.l.
Render: Moreno Marrazzo, Daniele Pasinetti